Meet Me In The Middle Housing: An Intro to the Seattle Six-Flat

A periodic table of middle housing options (via Opticos)

Hi! Ace here.

In case you haven’t been paying attention to housing policy (because I’m assuming you’re just as enthralled by it as I am), the state of Washington passed a major housing policy this year: House Bill 1110, the ‘Middle Housing’ bill. Explained succinctly, this bill allows homeowners to be able to build anywhere from one to five additional homes on their property, and in that way help the state to solve its current housing crisis.

But where will this be possible, what will it look like, and when will it happen? Given my work on both shaping and passing this bill, I have a few facts and a couple designs to share with you as you read on.

Who is Impacted?

Breaking down the passed law, the main substance of the bill does the following:

  • Allows duplexes in cities of at least 25,000 people

  • Allows fourplexes in cities of at least 75,000 people

In addition, there are additional units allowed in the following instances:

  • Allows up to two additional units if a parcel is located with a ¼ mile of a transit stop

  • Allows up to two additional units if one unit is Affordable Housing in cities of at least 25,000 people

  • Allows up to two additional units if those units are Affordable Housing in cities of at least 75,000 people

(note: as exciting as it would be, the maximum number of units in 25k+ cities is four units total and the maximum in 75k+ cities is six units total)

Coming soon to Medina? Duplex mansions. (image via Compass Real Estate)

There is also an additional note for cities where less than 25,000 people reside: if located within an urban growth area (read: city metro), they must allow at least duplexes. In this way, we make it clear that exclusive enclaves cannot continue their racist policies of excluding more housing from their communities while at the same time ensuring that we don’t encourage additional people from moving into our pristine and protected forest and farmlands.

There are also some ways to restrict the number of places where these new allowances can occur, however for the purposes of this conversation I’m going to focus on Seattle and their current land use rules to show what implementation and potential designs could look like.

Duplexes

(note: entourage - trees, parking, etc.
- has been excluded for clarity)

Starting off with a duplex, it takes this…

…and turns it to this.

Yes, the horrors of the “greedy developers” and threat of the destruction of “neighborhood character” all boil down to…an extra door.

Why?

Because nothing in the existing codes, or the new law, require changes to the rules already imposed on single-unit projects. What the law does say is the following:

(p. 12, E2HB 1110.SL)

The same restrictions also apply to potential fourplexes and sixplexes which will be allowed in Seattle. The current restrictions for single-unit development in Seattle include:

  • 5,000sf minimum lot size

  • 30’-0” maximum height (25’ if lot width is 30’-0” or less)

  • .5 Floor Area Ratio

  • 35% lot coverage maximum (how much of the ground can be covered by building)

A .5 FAR isn’t going to produce more than 2500sf of space, or 625sf per unit, so for the purpose of this exercise, we’ll remove that limit but keep the other rules. With those rules, this is what a legal fourplex could look like:

A little tight, but it works(?)

For a fourplex, what you’re looking at in terms of units are most likely three stories, with a good portion of each floor taken up by a stair, and a total maximum unit size of just over 1300sf. Not necessarily ideal for a long-term living situation.

Again, using the same rules, a legal sixplex could look like:

A sixpack of tallbois

Again, you take the limited lot coverage and further break that down across six units to have a total square footage of 875sf for a unit, across three floors, with a lot of stair space.

It’s just not good.

What could easily take restrictions that only work for one—maybe up to three—units would be to double the amount of lot coverage a project could have: from 35% up to 70%. Something like could look like:

A bit more house per unit as viewed from the front…

…with some decent green space in the back and even a dedicated space for trash/ recycling/ compost

In this quick layout, each unit would have a total size of 1750 sf and each unit would get a small, semi-private green space for doing things like actually making friends with your neighbors or sharing space with the people you developed one of these with, who could already be your friends. Doesn’t that sound great?

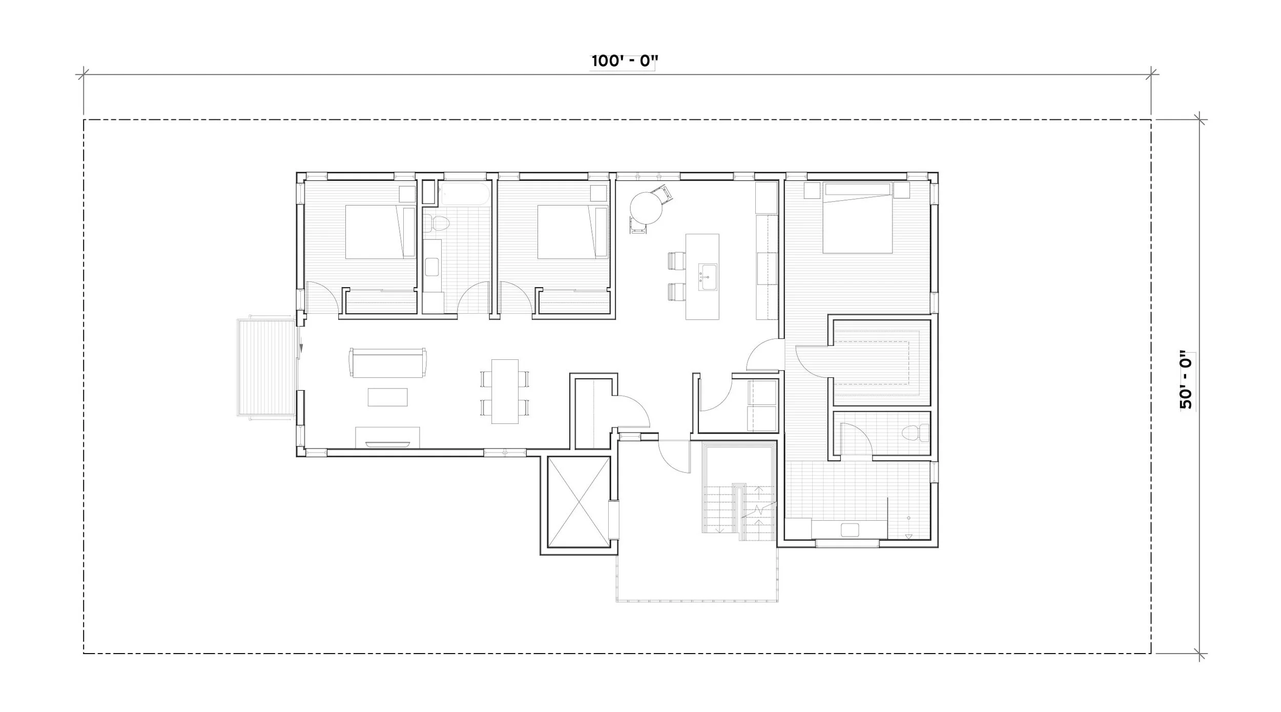
The Seattle Six-Flat

But let’s take a second to dream.

What could a six-unit building—a Seattle Six-Flat—look like if we were more concerned about maintaining the maximum amount of ground cover (read: more space for trees and rain to come down) and less concerned with the height of the building? Maybe something like this:

(context is for educational purposes only)

floor plan

The design you are looking at is one I’ve created: six flats stacked on top of one another, where each floor is a separate dwelling. Each flat would be just under 1600sf and would include three bedrooms, two baths, a full kitchen, a luxuriously large living space, and even a balcony to take in the lovely street below.

In this way, simply by increasing the allowed height even places like Pinehurst and Magnolia we would get to keep their magnolia and pine trees while allowing more space for people to live.

But projects like this cannot happen without changing the rules for all housing in the city.

When Will These Changes Take Place?

(image via WA Dept of Commerce)

Looking strictly at the law as passed,

“Six months after its next periodic comprehensive plan update required under RCW 36.70A.130 if the city meets the population threshold based on the 2020 office of financial management population data;”

For Seattle and other areas in orange that means that the final rules will be implemented no later than middle of 2025. We are currently in the Comprehensive Plan process, which means that this is our opportunity to both implement these rules and change other restrictions that are necessary in order to design the kinds of homes that will allow more opportunities for both Seattle residents now and in the future to purchase the kinds of places they can live in long term.

This bill will do a lot of good, but it can do even better with a little innovation and some imagination.

Whether looking at what you can build now or in the future, trust House Cosmopolitan to know the rules and innovate to make your dreams a reality

Andrew Houston